松戸市、柏市、市川市、船橋市、不動産 みのさん
松戸市、柏市、市川市、船橋市、不動産。
みのさんは武蔵野線・北総線の東松戸駅近くにあり、不動産を売買、仲介、買取、賃貸しています。
当社スタッフのオススメ物件です。ご希望の物件がきっと見つかるはず。

|
| 最寄駅から徒歩4分の好立地です♪
|
| 【内装工事内容】
☆キッチンガス台交換
☆リビングダウンライト交換
☆リビング・トイレ等扉4枚交換
☆全体クロス・畳・襖交換
☆ハウスクリーニング |
|
| 物件番号 |
TM |
| 交通 |
新京成線「三咲」駅 徒歩4分 |
| 所在地 |
船橋市三咲1丁目 |
| 価格 |
ご成約 |
| 土地面積 |
143.82m2(43.50坪) |
| 建物面積 |
95.91m2(29.01坪) |
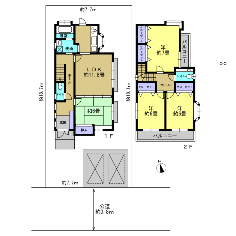
| 間取 |
4LDK |
| 構造・規模 |
木造(2階建 地上2階) |
| 築年月 |
平成11年7月築 |
| 用途地域 |
第一種中高層住居専用地域
|
| 地目 |
宅地 |
| 現況 |
空家 |
| 建ぺい率 |
60% |
| 容積率 |
200% |
| 土地権利 |
所有権 |
| 都市計画 |
市街化区域 |
| 引渡日 |
相談(平成26年7月内装工事後) |
| 接道状況 |
南側幅員約3.8m公道に間口約7.7m接道 |
| 駐車場 |
カースペース並列2台分有 |
| 設備 |
都市ガス・浄化槽・井戸 |
| 備考 |
※公営水道切替別途工事要(公営水道引込あり) ※土地面積は正味面積(登記簿)です。 ※第一種高度地区 |
| 取引態様 |
専任媒介 |