| ■3線3駅利用可能! ■市川駅徒歩11分! ■洗面室にアッパーキャビネットや小屋裏収納、リビングに造り付け収納があり、収納豊富です! ■食洗機、ビルトイン浄水器付ハンドシャワー水栓を標準搭載! ■お風呂はゆったり1坪サイズです! |
| 新築一戸建 | 市川市新田2-376-17 |
| 価格ご成約 |
| 物件番号 | YA |
| 交通 | JR総武線「市川」駅 徒歩11分 |
| 所在地 | 市川市新田2-376-17 |
| 価格 | ご成約 |
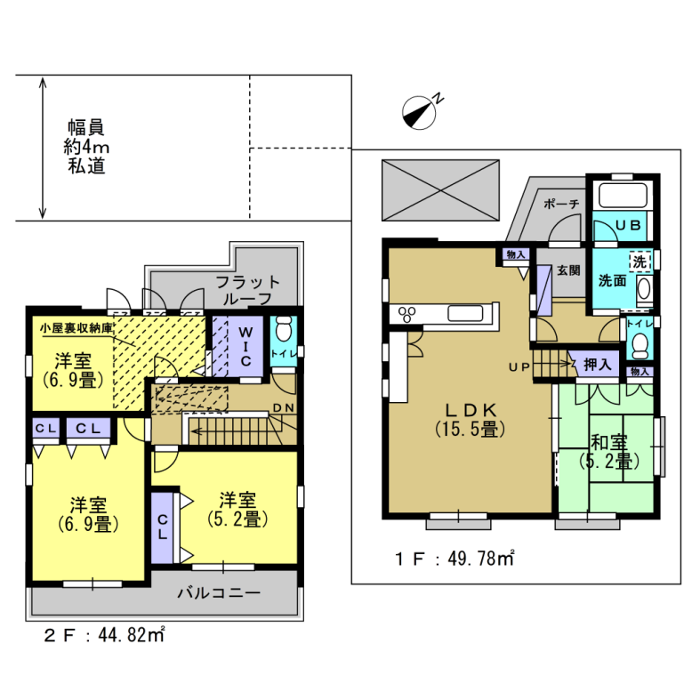
| 土地面積 | 96.81m2(29.28坪) |
| 建物面積 | 94.60m2(28.61坪) |
| 間取 | 4LDK |
| 構造・規模 | 木造(2階建) |
| 築年月 | 平成26年8月中旬予定 |
| 建築確認番号 | 第13UDI3C建01843号 |
| 用途地域 | 第一種中高層住居専用地域 |
| 地目 | 宅地 |
| 現況 | 建築中 |
| 建ぺい率 | 60% |
| 容積率 | 200(160)% |
| 土地権利 | 所有権 |
| 都市計画 | 市街化区域 |
| 引渡日 | 相談 |
| 接道状況 | 北西側 幅員4.0m 私道 |
| 駐車場 | 有(車両限定有) |
| 設備 | 東京電力・公営水道・都市ガス・本下水 |
| 備考 | 私道負担面積;11.83平米 |
| 取引態様 | 仲介 |