| 全室2面採光! 駐車スペース2台確保! 建物完成済み、内覧可能です! |
| 新築一戸建 | 松戸市八ヶ崎5-18-6 2号棟 |
| 価格ご成約 |
| 物件番号 | TM |
| 交通 | 新京成線「常盤平」駅 徒歩17分 |
| 所在地 | 松戸市八ヶ崎5-18-6 2号棟 |
| 価格 | ご成約 |
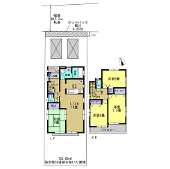
| 土地面積 | 152.74m2 |
| 建物面積 | 96.05m2 |
| 間取 | 4LDK |
| 販売戸数 | 全3棟 |
| 構造・規模 | 木造(2階建 地上2階) |
| 築年月 | 平成26年3月 |
| 建築確認番号 | 第13UDI3S建01321号 |
| 用途地域 | 第一種低層住居専用地域 |
| 地目 | 宅地 |
| 現況 | 完成済 |
| 建ぺい率 | 50% |
| 容積率 | 100% |
| 土地権利 | 所有権 |
| 都市計画 | 市街化区域 |
| 引渡日 | 相談 |
| 接道状況 | 北側 幅員4.3m私道に接道 |
| 駐車場 | カースペース2台分有 |
| 設備 | 都市ガス・本下水 |
| 備考 | セットバック面積;4.26平米 協定部分道路を除いた面積;152.66平米 |
| 取引態様 | 仲介 |