| 区画整理地内、太陽光標準装備! 1階シャッター雨戸付! |
| 新築一戸建 | 松戸市八ヶ崎6-34-24 2号棟 |
| 価格ご成約 |
| 物件番号 | TM |
| 交通 | JR常磐線「馬橋」駅 徒歩15分 |
| 所在地 | 松戸市八ヶ崎6-34-24 2号棟 |
| 価格 | ご成約 |
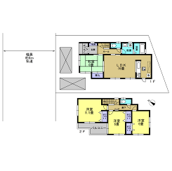
| 土地面積 | 132.25m2(40.00坪) |
| 建物面積 | 98.82m2(29.89坪) |
| 間取 | 4LDK |
| 販売戸数 | 全2区画 |
| 構造・規模 | 木造(2階建 地上2階) |
| 築年月 | 平成25年11月上旬 |
| 建築確認番号 | 第13UDI2T建00668号 |
| 用途地域 | 第一種低層住居専用地域 |
| 地目 | 宅地 |
| 現況 | 完成済 |
| 建ぺい率 | 50% |
| 容積率 | 100% |
| 土地権利 | 所有権 |
| 引渡日 | 即時 |
| 接道状況 | 北西側幅員4.0m私道に接道 |
| 駐車場 | カースペース2台分有 |
| 設備 | 東京電力・都市ガス・公営水道・公共下水 |
| 備考 | 太陽光発電標準装備! |
| 取引態様 | 仲介 |