| 最寄駅より徒歩12分! 生活至便!住環境良好! |
| 新築一戸建 | 松戸市小金きよしケ丘3-25-16 |
| 価格ご成約 |
| 物件番号 | TM |
| 交通 | 常磐緩行線「北小金」駅 徒歩12分 |
| 所在地 | 松戸市小金きよしケ丘3-25-16 |
| 価格 | ご成約 |
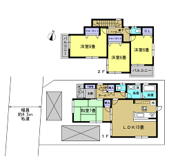
| 土地面積 | 113.27m2(34.26坪) |
| 建物面積 | 96.39m2(29.15坪) |
| 間取 | 4LDK |
| 構造・規模 | 木造(2階建 地上2階) |
| 築年月 | 平成26年3月下旬 |
| 建築確認番号 | 第13UDI2T建01491号 |
| 用途地域 | 第一種住居地域 |
| 地目 | 宅地 |
| 現況 | 完成済 |
| 建ぺい率 | 60% |
| 容積率 | 200% |
| 土地権利 | 所有権 |
| 都市計画 | 市街化区域 |
| 引渡日 | 平成26年4月中旬予定 |
| 接道状況 | 西側幅員4.5m私道に接道 |
| 駐車場 | カースペース2台分有 |
| 設備 | 都市ガス・公営水道・本下水 |
| 備考 | 私道負担:有(99.87平米持分1/4) |
| 取引態様 | 仲介 |