| 物件番号 |
(TM) |
| 交通 |
新京成線「常盤平駅」駅 徒歩11分 |
| 交通2 |
武蔵野線「新八柱駅」駅 徒歩11分 |
| 交通3 |
新京成線「常盤平駅」駅 |
| 所在地 |
松戸市常盤平柳町16-24 1号棟 |
| 価格 |
ご成約 |
| 土地面積 |
125.23m2(37.88坪) |
| 建物面積 |
98.01m2(29.64坪) |
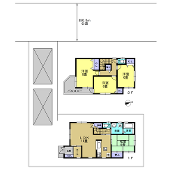
| 間取 |
4LDK |
| 構造・規模 |
木造(2階建 地上2階) |
| 築年月 |
平成25年4月下旬 |
| 建築確認番号 |
第12UDI2T建01251号 |
| 用途地域 |
第二種低層住居専用地域
|
| 地目 |
宅地 |
| 現況 |
建築中 |
| 建ぺい率 |
50% |
| 容積率 |
100% |
| 土地権利 |
所有権 |
| 都市計画 |
市街化区域 |
| 引渡日 |
平成25年4月下旬 |
| 接道状況 |
西側幅員6.0m公道 |
| 駐車場 |
カースペース有 |
| 設備 |
東京電力・公営水道・公営下水・都市ガス |
| 備考 |
消費税・外構工事費込 その他照明器具・カーテンレール等は別途注文となります。 CATVはお客様負担となります。 雨戸標準仕様!1階シャッター雨戸付! |
| 取引態様 |
仲介 |